Обяви За нас Контакти
Продава 3-СТАЕН
град Пловдив, Христо Смирненски
При запитване
История на цената
Публикувана в 17:07 на 24 септември, 2025 год.
Обявата е посетена 582 пъти.
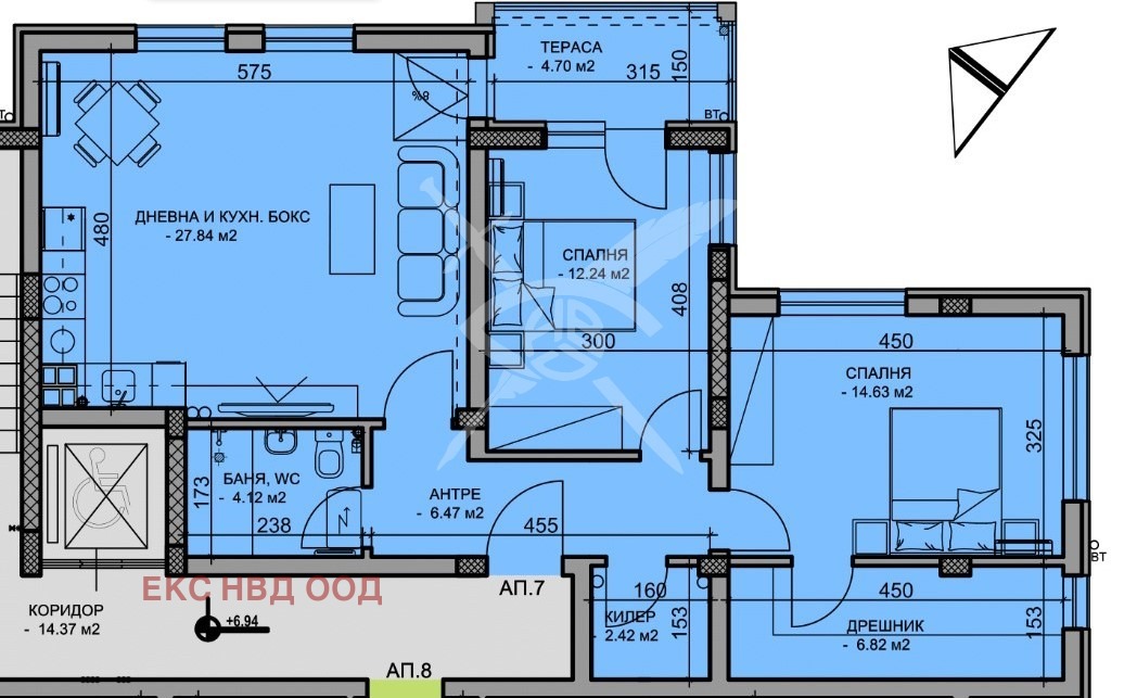
Площ:
119 m2
Етаж:
3-ти от 3
Строителство:
Тухла, Ще бъде въведен в експлоатация 2025 г.

Описание на имота:


Компания X представя на Вашето внимание тристаен апартамент в Христо Смирненски!

МЕСТОПОЛОЖЕНИЕ: Христо Смирненски е един от най-предпочитаните квартали в западната част на Пловдив. Разположен близо до Гребната база и парк 'Отдих и култура', районът съчетава спокойствие, зеленина и удобен достъп до централната част на града. Отличава се с добра инфраструктура, модерни жилищни сгради, множество училища, детски градини, магазини и удобен градски транспорт. Подходящ е както за семейно жилище, така и за инвестиция.

СТРОИТЕЛСТВО: Апартаментът се намира на 3-ри, етаж, в сграда ново строителство.

РАЗПРЕДЕЛЕНИЕ: Жилището разполага с площ от 119 кв.м., разпределена по следния начин: входно антре, дневна с кухненски бокс, две спални, баня с тоалетна, килер, дрешник и тераса.

СЪСТОЯНИЕ: В строеж.

Заповядайте да Ви го покажем. Използвайки нашите услуги Вие ще превърнете закупуването на новия си дом в едно приятно изживяване, ще получите персонален консултант, съдействие при кандидатстване за кредит от всички банки в България, интериорни дизайнери и екип, който да се погрижи за нужните документи по Вашата сделка. На Ваше разположение сме всеки ден, от понеделник до неделя от 09:00 до 20:00ч. Възползвайте се от безплатна консултация в наш офис, където ще ви спестим време и ще ви запознаем с всички актуални имоти в България, отговарящи на Вашето търсене. Свържете се с нас на 0887779990 или на 0884060990 и цитирайте кода към имота: 637-20572
Виж всички обяви в xnvd_plovdiv.bazar.bg или тук
Особености
Тухла
За контакт:
0887779990
Агенция:
ЕКС НВД ООД
088777990
ЕКС НВД ООД logo
В imot.bg от 2023 г.
xnvd_plovdiv.imot.bg
Адрес:
област Пловдив, гр. Пловдив, бул. Мария Луиза 43 А
ИЗПРАТИ ЗАПИТВАНЕ
ИЗПРАТИ ЗАПИТВАНЕТО

Продава 3-СТАЕН
град Пловдив, Христо Смирненски
Обява: 1c175872286739311

При запитване
История на цената

ЗАПАЗИ ОБЯВАТА

Местоположение: град Пловдив, Христо Смирненски

Допълнителни данни за имотите в района и сравнение с други райони: Търсене в АРХИВ 2013 - 2025 г.











Добави/редактирай
вид имот и район
*Средните цени са определени чрез медиана стойност.